Вентилятор радиальный ВР-80-75 исполнения дымоудаления
Вентиляторы серии ВР-80-75-ДУ для противопожарных систем дымоудаления (ППД-систем) представляют собой радиальные вентиляторы с загнутыми назад лопатками специальной формы с рабочим колесом левого или правого вращения.
Вентиляторы ВР-80-75-ДУ выпускают в двух исполнениях ДУ400 и ДУ600, что подтверждено соответствующим сертификатом.
Дополнительное оборудование для монтажа радиальных вентиляторов ВР-80-75-ДУ

|
№ |
Наименование |
Описание |
|
1 |
Вставка гибкая круглая ВГК-ВР/ВЦ |
Вставки гибкие круглые предназначены для предотвращения передачи вибрации от вентилятора к воздуховоду |
|
2 |
Вставка гибкая прямоугольная ВГП-ВР/ВЦ |
Вставки гибкие прямоугольные предназначены для предотвращения передачи вибрации от вентилятора к воздуховоду |
|
3 |
Клапан вертикального выброса КВВ-ВР/ВЦ |
Клапан вертикального выброса предназначен для защиты выходного фланца вентилятора от атмосферных осадков при угле поворота корпуса вентилятора 0° |
|
4 |
Виброизоляторы |
Виброизоляторы устанавливают для отсечки вибрационной нагрузки на вентилятор и на фундамент |
|
5 |
Кожух ЭД-ВР/ВЦ |
Кожух ЭД предназначен для защиты электродвигателя от попадания осадков при использовании вентилятора на улице |
Примечание: Дополнительное оборудование в стандартную комплектацию не входит.
Исполнение вентиляторов
|
Условное обозначение |
Температура перемещаемой среды, ºС |
Материал |
Назначение |
|
ДУ600 |
до +600 |
Жаростойкая сталь, углеродистая сталь со специальным покрытием |
Для удаления возникающих при пожаре газов и одновременного отвода тепла за пределы обслуживаемого помещения с целью проведения работ по борьбе с пожаром, по спасению людей и имущества. В зависимости от требований такой вентилятор может перемещать газы с температурой 400 °С или 600 °С до 120 минут |
|
ДУ400 |
до +400 |
Углеродистая сталь со специальным покрытием |
Полная информация о вентиляторах ВР-80-75-ДУ в электронном pdf-каталоге по ссылке во вкладке "Характеристики".
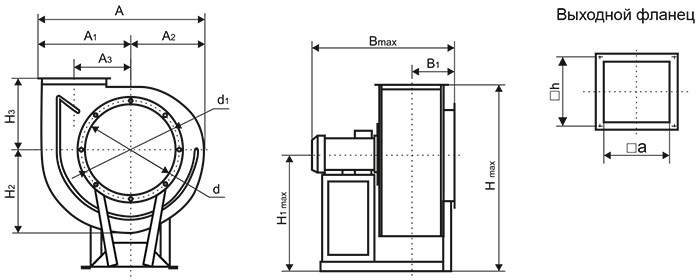
Габаритные и присоединительные размеры

|
№ |
Габарит |
A* |
А1 |
А2 |
А3 |
В max |
В1 |
H** max |
H1 |
Н2 |
H3 |
d |
d1 |
a |
h |
|||||
|
0° |
45° |
90°, 270° |
135°, 315° |
0° |
45° |
90° |
||||||||||||||
|
ВР-80-75-4,0 |
63 |
702 |
656 |
650 |
834 |
401 |
301 |
258 |
638 |
232 |
766 |
974 |
889 |
469 |
358 |
297 |
400 |
434 |
280 |
300 |
|
71 |
702 |
656 |
650 |
834 |
401 |
301 |
258 |
643 |
232 |
774 |
982 |
897 |
477 |
358 |
297 |
400 |
434 |
280 |
300 |
|
|
80 |
702 |
656 |
650 |
834 |
401 |
301 |
258 |
655 |
232 |
783 |
991 |
906 |
486 |
358 |
297 |
400 |
434 |
280 |
300 |
|
|
100 |
702 |
656 |
650 |
834 |
401 |
301 |
258 |
722 |
232 |
803 |
1010 |
926 |
506 |
358 |
297 |
400 |
434 |
280 |
300 |
|
|
112 |
702 |
656 |
650 |
834 |
401 |
301 |
258 |
739 |
232 |
815 |
1022 |
938 |
518 |
358 |
297 |
400 |
434 |
280 |
300 |
|
|
ВР-80-75-5,0 |
71 |
877 |
818 |
798 |
1037 |
501 |
376 |
396 |
752 |
269 |
930 |
1097 |
1091 |
561 |
440 |
359 |
500 |
534 |
350 |
379 |
|
80 |
877 |
818 |
798 |
1037 |
501 |
376 |
396 |
762 |
269 |
939 |
1106 |
1100 |
720 |
440 |
359 |
500 |
534 |
350 |
379 |
|
|
90 |
877 |
818 |
798 |
1037 |
501 |
376 |
396 |
771 |
269 |
949 |
1116 |
1110 |
730 |
440 |
359 |
500 |
534 |
350 |
379 |
|
|
100 |
877 |
818 |
798 |
1037 |
501 |
376 |
396 |
781 |
269 |
959 |
1126 |
1120 |
590 |
440 |
359 |
500 |
534 |
350 |
379 |
|
|
ВР-80-75-6,3 |
100 |
1107 |
1026 |
993 |
1288 |
631 |
476 |
404 |
1061 |
343 |
1141 |
1478 |
1360 |
700 |
554 |
441 |
630 |
665 |
441 |
470 |
|
112 |
1107 |
1026 |
993 |
1288 |
631 |
476 |
404 |
1073 |
343 |
1153 |
1490 |
1372 |
712 |
554 |
441 |
630 |
665 |
441 |
470 |
|
|
132 |
1107 |
1026 |
993 |
1288 |
631 |
476 |
404 |
1093 |
343 |
1173 |
1510 |
1392 |
732 |
554 |
441 |
630 |
665 |
441 |
470 |
|
* Размер, зависящий от положения корпуса вентилятора.
** Максимальная высота при различных положениях корпуса вентилятора (0°, 45°, 90°).
Габаритные размеры Bmax и H1max соответственно зависят от устанавливаемого двигателя. Габаритный размер Hmax зависит от положения корпуса и устанавливаемого двигателя.
Габаритные и присоединительные размеры основания рамы вентиляторов ВР-80-75-ДУ

|
№ вентилятора |
Габарит электродвигателя |
А |
В |
C |
D |
Е |
F |
K |
L |
M |
n |
|
ВР-80-75-4,0 |
63-112 |
570 |
290 |
314 |
- |
- |
20 |
163 |
30 |
8,5 |
8 |
|
ВР-80-75-5,0 |
71-100 |
700 |
385 |
435 |
10 |
240 |
100 |
240 |
- |
- |
6 |
|
ВР-80-75-6,3 |
100-132 |
854 |
486 |
546 |
10 |
325 |
100 |
325 |
- |
- |
6 |
Технические характеристики
|
Наименование |
Габарит электродвигателя |
N, кВт |
n, об/мин |
Ток при 380В, А |
Масса max, кг |
Виброопора тип ЕС (А) |
|
|
Кол-во |
Тип |
||||||
|
ВР-80-75-4,0-ДУ400-РН-0,25/1000/220-380 |
63 |
0,25 |
870 |
0,98 |
44,9 |
4 |
20*25(А) М6 |
|
ВР-80-75-4,0-ДУ400-РН-0,37/1000/220-380 |
71 |
0,37 |
910 |
1,33 |
48,1 |
4 |
20*25(А) М6 |
|
ВР-80-75-4,0-ДУ400-РН-0,75/1500/220-380 |
71 |
0,75 |
1350 |
2,14 |
48,4 |
4 |
20*25(А) М6 |
|
ВР-80-75-4,0-ДУ400-РН-1,1/1500/220-380 |
80 |
1,1 |
1370 |
2,97 |
52,5 |
4 |
20*25(А) М6 |
|
ВР-80-75-4,0-ДУ400-РН-5,5/3000/220-380 |
100 |
5,5 |
2850 |
11,2 |
73,3 |
6 |
20*25(А) М6 |
|
ВР-80-75-4,0-ДУ400-РН-7,5/3000/220-380 |
112 |
7,5 |
2860 |
15,1 |
81,8 |
6 |
20*15(А) М6 |
|
ВР-80-75-5,0-ДУ400-РН-0,55/1000/220-380 |
71 |
0,55 |
910 |
1,87 |
73,3 |
6 |
20*25(А) М6 |
|
ВР-80-75-5,0-ДУ400-РН-0,75/1000/220-380 |
80 |
0,75 |
910 |
2,29 |
76,7 |
6 |
20*25(А) М6 |
|
ВР-80-75-5,0-ДУ400-РН-2,2/1500/220-380 |
90 |
2,2 |
1390 |
5,36 |
94 |
6 |
20*15(А) М6 |
|
ВР-80-75-5,0-ДУ400-РН-3,0/1500/220-380 |
100 |
3,0 |
1410 |
7,12 |
95 |
6 |
20*15(А) М6 |
|
ВР-80-75-6,3-ДУ400-РН-2,2/1000/220-380 |
100 |
2,2 |
920 |
5,79 |
132 |
6 |
25*20(А) М6 |
|
ВР-80-75-6,3-ДУ400-РН-3,0/1000/220-380 |
112 |
3,0 |
930 |
7,31 |
147 |
6 |
25*20(А) М6 |
|
ВР-80-75-6,3-ДУ400-РН-5,5/1500/220-380 |
112 |
5,5 |
1440 |
12,10 |
152 |
6 |
25*20(А) М6 |
|
ВР-80-75-6,3-ДУ400-РН-7,5/1500/380-660 |
132 |
7,5 |
1440 |
15,80 |
174,5 |
6 |
30*30(А) М8 |
* Технические и шумовые характеристики ВР-80-75-ДУ600 соответствуют ВР-80-75-ДУ400.
Электрические схемы подключения вентиляторов в сеть 380 В

* В вентиляторах с номинальным напряжением ∆/Y 380В/660В предусмотрена возможность запуска пониженным напряжением по схеме Y-∆. Для получения более подробной информации по подключению, обратитесь в отдел технической поддержки.
Не представленные в наличии модели доступны к поставке под заказ
Оповестить о поступлении
Всю необходимую информацию также можно получить по телефону «горячей линии»
+ 7 800 200 93 96или по телефону
+7 800 505 08 67 получить консультацию
